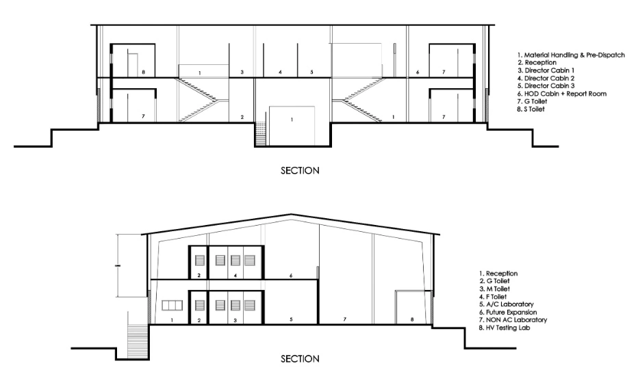
So, as one of the best industrial architects in Pune, our mission was to redefine industrial buildings for maximum productivity and collaboration. And then when we got the change to design this facility in the busting industrial hub of Shivapur, Maharashtra, there was no looking back.
Our client was a leading manufacturer and needed a facility that could grow with his ambitions. So, we tried to give him a clear, innovative and efficient arena by using a pre-engineered building (PEB) system. Thus, we could maximize the circulatory space for loading, unloading, advanced production and future expansion as well.
But beyond the structure itself, we wanted this complex to stand as a model for sustainable industrial design. So we used our climatology analysis to decide the materials, the orientation, the openings, etc. This way, we were finally able to reduce operational costs, the environmental impact and set new benchmarks altogether.
Year : 2024 (Ongoing)
Location : Shivapur, Pune
Plot Area : 1512 sq.m
Built-Up Area : 881 sq.m
The experience with Espirit Architecure(Amrut Deshmukh) was very professional and hassle free since the beginning. The dedicated team worked hard to stick up to target date and delivered accirdingly. Each and every input from us was considered. Happy with end result.
In 2021 I entrusted Architectural and Project Supervision Services on Esprit Architecture for my G+1 Bungalow in Nanded City Pune. I wish to endorse my satisfaction with the Firm and especially Ar. Amrut Deshmukh who patiently understood my requirements and translated into reality with precision.
Working with Amrut has been an absolute pleasure. His calm and professional approach made the entire process stress-free. He listened carefully to our needs and delivered designs that perfectly balanced functionality and aesthetics. His cooperative nature ensured that every suggestion was considered.
Working with Esprit Architecture has been an absolute pleasure. Their attention to detail, innovative design approach, and commitment to excellence truly set them apart. From the initial concept to the final execution, they demonstrated exceptional creativity, professionalism, and a deep understanding of our needs...
The seamless coordination between aesthetics and functionality resulted in a space that is not only visually stunning but also highly practical. Their ability to blend modern trends with timeless elements exceeded our expectations. We highly recommend them to anyone seeking top-tier architectural services.
Pleasure to work with! Good experience from planning to completion.