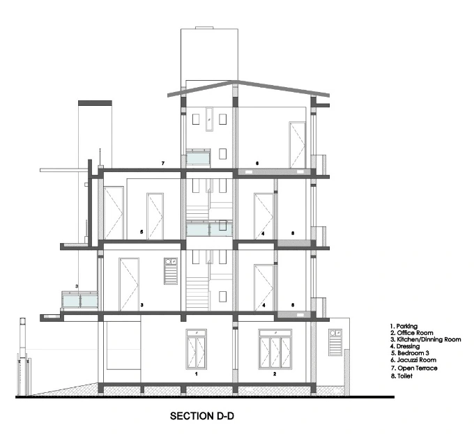
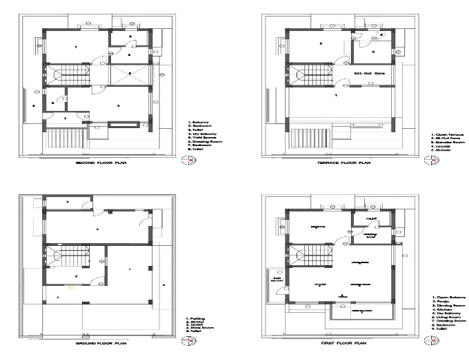
So, when we started designing the Nashik House, our goal was simple. We just wanted to create a modern bungalow design that reflected our client’s personality, background and passion for materials. Thus, we had the opportunity to play with different textures and finishes, both for the interior and exterior, to highlight each space. Yes, the plot wasn’t huge; So, we paid extra attention to detail. Like, every nook, every level in this bungalow interior design was utilized to expand space, while still maintaining warmth & a seamless flow. So, for us at Esprit architecture, the Nashik House isn’t just about being one of the best bungalow design out there; it’s about crafting a home that celebrates innovation, materiality, and the people who make it come alive.
Year : 2019
Location : Nashik
Plot Area : 160 sq.m
Built-Up Area : 264 sq.m
The experience with Espirit Architecure(Amrut Deshmukh) was very professional and hassle free since the beginning. The dedicated team worked hard to stick up to target date and delivered accirdingly. Each and every input from us was considered. Happy with end result.
In 2021 I entrusted Architectural and Project Supervision Services on Esprit Architecture for my G+1 Bungalow in Nanded City Pune. I wish to endorse my satisfaction with the Firm and especially Ar. Amrut Deshmukh who patiently understood my requirements and translated into reality with precision.
Working with Amrut has been an absolute pleasure. His calm and professional approach made the entire process stress-free. He listened carefully to our needs and delivered designs that perfectly balanced functionality and aesthetics. His cooperative nature ensured that every suggestion was considered.
Working with Esprit Architecture has been an absolute pleasure. Their attention to detail, innovative design approach, and commitment to excellence truly set them apart. From the initial concept to the final execution, they demonstrated exceptional creativity, professionalism, and a deep understanding of our needs...
The seamless coordination between aesthetics and functionality resulted in a space that is not only visually stunning but also highly practical. Their ability to blend modern trends with timeless elements exceeded our expectations. We highly recommend them to anyone seeking top-tier architectural services.
Pleasure to work with! Good experience from planning to completion.