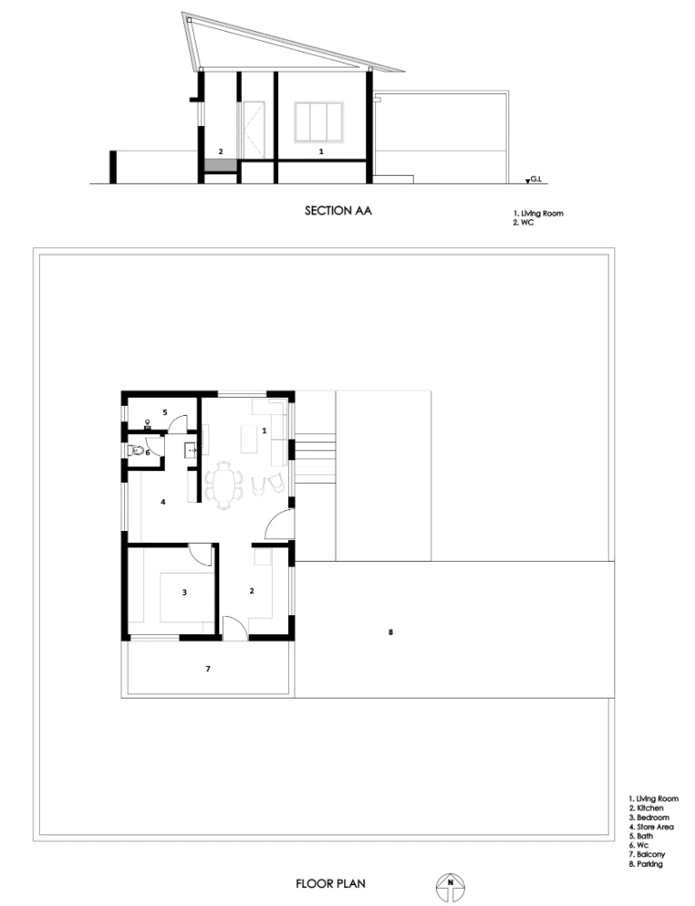
Manik! Ah! It’s a classic Indian farmhouse design that immediately catches your eye with its striking, slanting roof design, responds to its surroundings and pays homage to the Great Indian Bustard, a magnificent bird native to this region but sadly endangered.
And well, going ahead with this farmhouse planning wasn’t easy either. You see, we wanted the space to feel free, still grounded. Thus, adding soaring high ceilings against a simple 1.4 BHK layout made total sense. Then, as for the exterior, we wanted something lively and welcoming. So, we (and the client too!) unanimously decided on the Pondicherry style. And thus, the same cheerful colour palette, vibrant doors and striking hues followed next.
And then finally, we added a simple vernacular-style outdoor cooking area on the east and a small, semi-covered deco on the south. This eventually made it the perfect spot to relax and unwind, all one with earth!
Year : 2019
Location : Theur, Pune
Plot Area : 463 sq.m
Built-Up Area : 58 sq.m
The experience with Espirit Architecure(Amrut Deshmukh) was very professional and hassle free since the beginning. The dedicated team worked hard to stick up to target date and delivered accirdingly. Each and every input from us was considered. Happy with end result.
In 2021 I entrusted Architectural and Project Supervision Services on Esprit Architecture for my G+1 Bungalow in Nanded City Pune. I wish to endorse my satisfaction with the Firm and especially Ar. Amrut Deshmukh who patiently understood my requirements and translated into reality with precision.
Working with Amrut has been an absolute pleasure. His calm and professional approach made the entire process stress-free. He listened carefully to our needs and delivered designs that perfectly balanced functionality and aesthetics. His cooperative nature ensured that every suggestion was considered.
Working with Esprit Architecture has been an absolute pleasure. Their attention to detail, innovative design approach, and commitment to excellence truly set them apart. From the initial concept to the final execution, they demonstrated exceptional creativity, professionalism, and a deep understanding of our needs...
The seamless coordination between aesthetics and functionality resulted in a space that is not only visually stunning but also highly practical. Their ability to blend modern trends with timeless elements exceeded our expectations. We highly recommend them to anyone seeking top-tier architectural services.
Pleasure to work with! Good experience from planning to completion.